140 431 ₽/м²
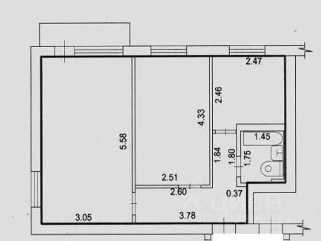
Кухня оборудована встроенной электрической плитой Bosch с варочной стеклокерамической поверхностью и закаленным стеклом на 4 конфорки и вытяжкой maunfeld. Сам фасад кухни выполнен из дверец под дерево с доводчиками и плавными выдвижными ящиками. Также присутствует круглая гранитная мойка с немецким смесителем. В центре кухни расположен стеклянный стол с деревянной основой и металлическим каркасом и ножками. Микроволновая печь Samsung и холодильник Haier рассматриваются также вместе со всей мебелью. Натяжные потолки и ламинат 34 класса с фаской и лампа с пультом регулировки теплый/холодный свет и яркости. Дорогие металлические подвесы для тюли с люверсами и окнами Rehau. На стенках виниловые обои по всей квартире. Акриловые туалет и ванная, скрытые люки для расположения сантехнических труб, кранов, счетчиков и водонагревателя на случаи отключения воды. Высокое давление напора воды, дорогостоящая узорная плитка с элементами декора. Немецкая стиральная машина AEG. Две защищенные розетки и подсветка зеркала с лампой. В коридоре расположены шкафная группа под потолок для верхней одежды и 5 полок с большим зеркалом. Имеется противопожарная система с сертификацией и светильниками белого холодного света. В зале расположено кресло и диван(которые возможно, по обсуждению мы не оставим на продажу), домашний кинотеатр LG, плазменный телевизор LG и стенкой Ангстерм Изотта мини с деревянными поддолами, дверьми и ящиками (стоимость на данный момент около 220 тысяч). Балкон с пластиковыми окнами приблизительно 7 м^2 и выход пластиковыми балконными дверьми. Гардероб 6 м^2 с вешалкой под одеждой и большим ящиком. Окна выходят на двор, в подъезде на каждом этаже находятся камеры и грузовой лифт. Камеры на улице и в арке с выходом на обе стороны дома. Вместе с квартирой продается подвал площадью 11 м^2 обделанный дсп панелями с большими полками и освещением для хранения. Торг уместен в разумных пределах.












































































